Eardley Road, London, SW16

£600,000

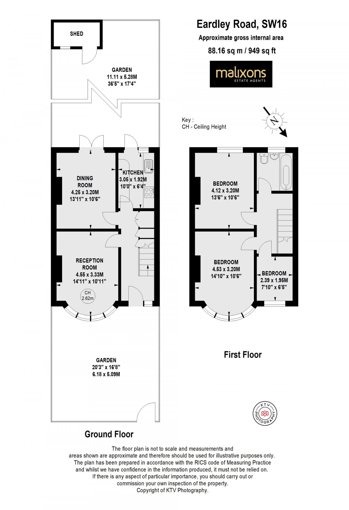
Floorplan for Eardley Road, London, SW16
EPC for Eardley Road, London, SW16

Specification

  • Bedrooms:3
  • Bathrooms:1
  • Receptions:2
  • Tenure: Freehold
  • Stamp Duty: *

*Stamp duty is calculated based on a first time buyer.

Calculate Your Stamp Duty
£
Results
Stamp Duty To Pay:
Effective Rate:
Tax Band % Taxable Sum Tax

Description

A superb 3 bedroom family home located moments away from Streatham Common station

Ideally positioned in a sought-after Streatham setting directly opposite Streatham Common station, this three-bedroom terraced house offers a combination of comfort, convenience and potential. Offering approximately 949 sq ft of well-proportioned living space, this chain-free property presents an excellent opportunity for buyers looking to create a home tailored to their own style.

Upon entering, a hallway leads through to the main living areas. The ground floor comprises a reception room and kitchen, while the first floor provides three bedrooms and a family bathroom. The property is in good order throughout but also offers excellent scope for extension (subject to the necessary planning permissions), making it an appealing option for buyers planning for future growth.

Families will appreciate the convenience of having four schools within a 0.4-mile radius. The vibrant local area provides a wide range of amenities within easy walking distance, including independent shops, cafés, restaurants, gyms and supermarkets. Excellent bus links to Tooting and Brixton are also nearby, making travel across South London straightforward.

Step outside and the property benefits from a private rear garden, offering a welcome retreat from the pace of city life. Whether used for summer barbecues, a children’s play area or simply somewhere to relax outdoors, it provides a versatile space. The garden is easy to maintain and offers potential for buyers to personalise with planting or landscaping.

For those who enjoy green space, Streatham Common and the beautiful Rookery Gardens are nearby, ideal for walks, picnics or spending time outdoors. Altogether, this home offers a balance of peaceful living with the convenience and energy of Streatham close at hand.

Eardley Road, London, SW16
Eardley Road, London, SW16
Eardley Road, London, SW16
Eardley Road, London, SW16
Eardley Road, London, SW16
Eardley Road, London, SW16
Share this property