Trafford Road, Thornton Heath, CR7

£500,000

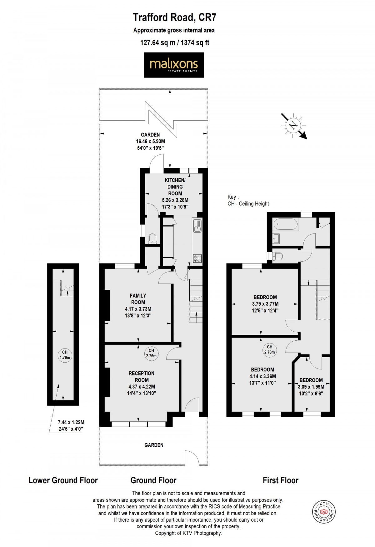
Floorplan for Trafford Road, Thornton Heath, CR7
EPC for Trafford Road, Thornton Heath, CR7

Specification

  • Bedrooms:4
  • Bathrooms:1
  • Receptions:1
  • Tenure: Freehold
  • Stamp Duty: *

*Stamp duty is calculated based on a first time buyer.

Calculate Your Stamp Duty
£
Results
Stamp Duty To Pay:
Effective Rate:
Tax Band % Taxable Sum Tax

Description

Charming terraced house with 3 beds + family room (flexible as 4th bedroom) + separate reception, underground cellar. Large garden. Potential to extend & convert loft. Contact Malixons to view now!

Introducing this charming terraced house that effortlessly blends classic elegance with modern convenience. As you step through the front door, you are greeted by a sense of space and light, amplified by the high ceilings that add a touch of grandeur to the interiors.

On the first floor, you'll find three well-appointed bedrooms, each offering a cosy retreat at the end of a long day. The family room, which can also double up as a fourth bedroom, provides flexibility for any growing family or those who love to entertain guests.

One of the hidden gems of this property is the underground cellar, a unique feature that could be transformed into a creative space, or simply additional storage to keep your home clutter-free.

Conveniently located with great transport links and close proximity to local amenities, this home offers the perfect balance between city living and suburban tranquillity. Whether you're commuting to work or exploring the neighbourhood, this property is ideally situated for both work and play.

The standout feature of this property is the large, low maintenance garden, providing a private outdoor oasis where you can unwind, entertain, or simply soak up the sun. The potential to extend and convert the loft (subject to obtaining the necessary planning permissions) offers endless possibilities to customise the space to suit your lifestyle.

Don't miss out on the opportunity to make this house your home. With its versatile layout, unique features, and potential for expansion, this property is the perfect canvas for you to create the home of your dreams. Arrange a viewing today and start envisioning the life you could lead in this delightful terraced house.

Your new chapter starts here - seize the opportunity to transform this property into your ideal living space, where memories will be made and cherished for years to come. Welcome to your new home.

Get in touch with Malixons to arrange your viewing now!

Trafford Road, Thornton Heath, CR7
Trafford Road, Thornton Heath, CR7
Trafford Road, Thornton Heath, CR7
Trafford Road, Thornton Heath, CR7
Trafford Road, Thornton Heath, CR7
Trafford Road, Thornton Heath, CR7
Share this property